1825: 铺地毯

Memory Limit:128 MB Time Limit:1.000 S
Judge Style:Text Compare Creator:
Submit:23 Solved:8

Description

为了准备一个独特的颁奖典礼,组织者在会场的一片矩形区域(可看做是平面直角坐标系的第一象限)铺上一些矩形地毯。一共有 n 张地毯,编号从 1 到n。现在将这些地毯按照编号从小到大的顺序平行于坐标轴先后铺设,后铺的地毯覆盖在前面已经铺好的地毯之上。 地毯铺设完成后,组织者想知道覆盖地面某个点的最上面的那张地毯的编号。注意:在矩形地毯边界和四个顶点上的点也算被地毯覆盖。

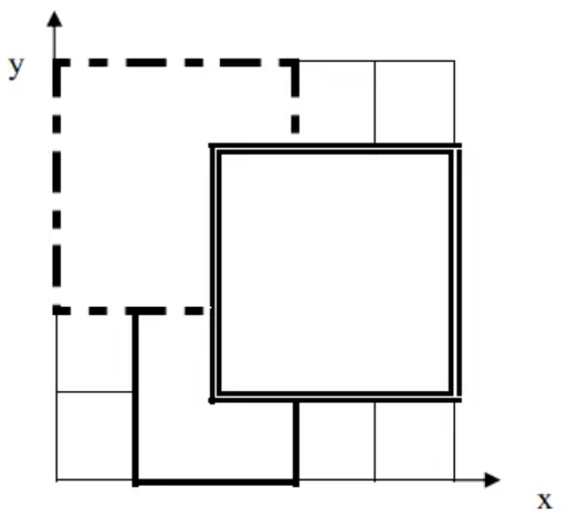
【样例解释 1】
如下图,11号地毯用实线表示,2号地毯用虚线表示,3号用双实线表示,覆盖点 (2,2) 的最上面一张地毯是 3 号地毯。

Input

输入共n+2行 第一行,一个整数n,表示总共有n张地毯 接下来的n行中,第 i+1 表示编号i的地毯的信息,包含四个正整数a,b,g,k.每两个整数之间用一个空格隔开,分别表示铺设地毯的左下角的坐标(a,b)以及地毯在x轴和y轴方向的长度 第n+2行包含两个正整数x和y,表示所求的地面的点的坐标(x,y)

Output

输出共1行,一个整数,表示所求的地毯的编号;若此处没有被地毯覆盖则输出-1

Sample Input Copy

3
1 0 2 3
0 2 3 3
2 1 3 3
2 2

Sample Output Copy

3